Корпорация
агентств
недвижимости
"Tv House-Lider"
+38 (095) 797-21-21
+38 (093) 797-21-21
Продается салон красоты ул. Ильфа и Петрова/ ул. Левитана
Odessa , Kievsky , ul. Ilf and Petrov
52000 $
грн
- usd
- грн
| ID | 1492 |
| Rooms | 2 |
| Total area | 30 м2 |
| Floor | 1 |
| Floors | 10 |
| State | Capital |
Телефоны:
+38 (098) 797-21-21+38 (095) 797-21-21
+38 (093) 797-21-21
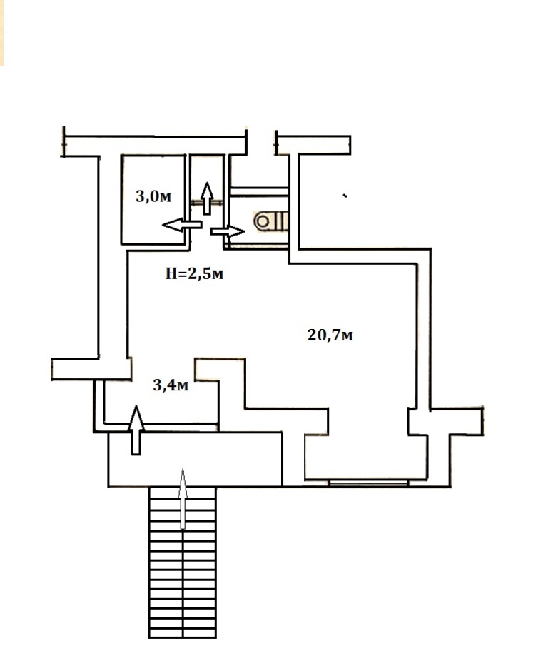
Фасадный вход. Высокий первый этаж.
Большой зал на три рабочих места.
Санузел. Два подсобных помещения.
Нежилой фонд.
Цена – 45 000 у.е. Без торга.
ID 1492
Similar offers
View allНовые квартиры в Одессе и области
Для тысяч одесситов и тех, кто хочет ими стать, квартиры в строящихся домах Одессы — не просто квадратные метры, а новые возможности для исполнения самых заветных желаний. Всем, кто ищет свою первую квартиру или расширяет жилплощадь в ожидании прибавления семьи, кто мечтает поселиться на берегу Черного моря или хочет сделать выгодную инвестицию в недвижимость, мы поможем отыскать и купить квартиры от самых лучших строительных компаний Одессы.
Правильный выбор
Светлое, просторное жилье в красивом современном доме, построенном по самым новейшим технологиям — это реально достижимая цель для всех наших клиентов. Мы подыскиваем оптимальные варианты, используя проверенную временем концепцию «Правильный выбор». Она включает тщательный анализ застройщиков и их предложений с целью выбрать лучшие. Наш клиент получает полное сопровождение сделки, подбор наиболее выгодной рассрочки для покупки новостройки.
Откройте для себя динамичный, яркий, полный возможностей мир недвижимости Одессы и его окрестностей в сопровождении лучших экспертов по новостройкам!
Что получают клиенты корпорации агентств недвижимости
- свежую и проверенную информацию обо всех новостройках Одессы и его пригорода;
- экскурсии по готовым и строящимся домам;
- консультации ведущих экспертов в области недвижимости;
- помощь в оформлении документов на рассрочку и покупку жилья.
Как купить квартиру в Одессе быстро и выгодно
Выберите лучший вариант прямо сейчас, воспользовавшись удобной системой поиска на сайте. Здесь есть все про квартиры в строящихся домах: цены, планировки, местоположение, сроки сдачи. Простой и удобный фильтр поможет отобрать подходящие варианты за минуту. Либо звоните нам — менеджеры предложат варианты по лучшей цене, расскажут о плюсах и минусах каждого жилого комплекса. Дальше все просто:
- вы бронируете выбранную квартиру;
- осматриваете объект в сопровождении персонального менеджера;
- выбираете удобную схему оплаты (единый платеж, рассрочка);
- заключаете договор напрямую с застройщиком.
Приезжайте в наш отдел продаж, чтобы лично побеседовать с ведущими экспертами в любом агенстве, входящем в Корпорацию и получить независимую оценку всех вариантов жилья, которые вас заинтересовали. Тех, кто приезжает выбирать квартиру в Одессе из других городов и регионов, мы встретим в аэропорту или на вокзале, поможем с размещением в гостинице и детально расскажем об всех вариантах, а главное — в каких новостройках действуют акции с максимальными скидками для иногородних клиентов. Мы поможем осуществить покупку квартиры в строящемся или готовом доме наиболее выгодно!

