Корпорация
агентств
недвижимости
"Tv House-Lider"
+38 (095) 797-21-21
+38 (093) 797-21-21
Продам многокомнатную квартиру
Odessa , Suvorovsky , ul. Balkovskaya
47000 $
1363000 грн
- usd
- грн
| ID | 42896 |
| Rooms | 4 |
| Total area | 89 м2 |
| Living area | 50.00 м2 |
| Kitchen area | 7.00 м2 |
| Floor | 14 |
| Floors | 16 |
| State | Residential |
Телефоны:
+38 (098) 797-21-21+38 (095) 797-21-21
+38 (093) 797-21-21
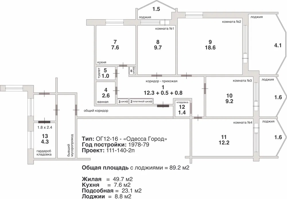
В продаже 4Х квартира в сотовом проекте, с ГАЗОМ на ул. БаЛковская. Общая площадь 89 м. 4 лоджии-балкона. Квартира в ЖИЛОМ состоянии , но в нее можно заехать и постепенно производить обновления. - светлая, с приятным видом на порт и город, - просторные комнаты каждая со своей лоджией, - вместительная кухня с газом, - раздельный санузел, - кладовая и встроенные шкафы. . Балконы застеклены. Отопление: централизованное. Подогрев воды: бойлер. Счетчики на электричество и воду. Когда нет света: есть мобильная связь Подъезд: кодовый замок Лифт: пассажирский + грузовой лифт 42896
Similar offers
View allНовые квартиры в Одессе и области
Для тысяч одесситов и тех, кто хочет ими стать, квартиры в строящихся домах Одессы — не просто квадратные метры, а новые возможности для исполнения самых заветных желаний. Всем, кто ищет свою первую квартиру или расширяет жилплощадь в ожидании прибавления семьи, кто мечтает поселиться на берегу Черного моря или хочет сделать выгодную инвестицию в недвижимость, мы поможем отыскать и купить квартиры от самых лучших строительных компаний Одессы.
Правильный выбор
Светлое, просторное жилье в красивом современном доме, построенном по самым новейшим технологиям — это реально достижимая цель для всех наших клиентов. Мы подыскиваем оптимальные варианты, используя проверенную временем концепцию «Правильный выбор». Она включает тщательный анализ застройщиков и их предложений с целью выбрать лучшие. Наш клиент получает полное сопровождение сделки, подбор наиболее выгодной рассрочки для покупки новостройки.
Откройте для себя динамичный, яркий, полный возможностей мир недвижимости Одессы и его окрестностей в сопровождении лучших экспертов по новостройкам!
Что получают клиенты корпорации агентств недвижимости
- свежую и проверенную информацию обо всех новостройках Одессы и его пригорода;
- экскурсии по готовым и строящимся домам;
- консультации ведущих экспертов в области недвижимости;
- помощь в оформлении документов на рассрочку и покупку жилья.
Как купить квартиру в Одессе быстро и выгодно
Выберите лучший вариант прямо сейчас, воспользовавшись удобной системой поиска на сайте. Здесь есть все про квартиры в строящихся домах: цены, планировки, местоположение, сроки сдачи. Простой и удобный фильтр поможет отобрать подходящие варианты за минуту. Либо звоните нам — менеджеры предложат варианты по лучшей цене, расскажут о плюсах и минусах каждого жилого комплекса. Дальше все просто:
- вы бронируете выбранную квартиру;
- осматриваете объект в сопровождении персонального менеджера;
- выбираете удобную схему оплаты (единый платеж, рассрочка);
- заключаете договор напрямую с застройщиком.
Приезжайте в наш отдел продаж, чтобы лично побеседовать с ведущими экспертами в любом агенстве, входящем в Корпорацию и получить независимую оценку всех вариантов жилья, которые вас заинтересовали. Тех, кто приезжает выбирать квартиру в Одессе из других городов и регионов, мы встретим в аэропорту или на вокзале, поможем с размещением в гостинице и детально расскажем об всех вариантах, а главное — в каких новостройках действуют акции с максимальными скидками для иногородних клиентов. Мы поможем осуществить покупку квартиры в строящемся или готовом доме наиболее выгодно!

