Корпорація
агентств
нерухомості
"Тв Дом-Лідер"
+38 (095) 797-21-21
+38 (093) 797-21-21
3 -х ком. квартира на земле - пер. Матросова
Одесса, Приморский, переулок Александра Матросова
58500 $
1696500 грн
- usd
- грн
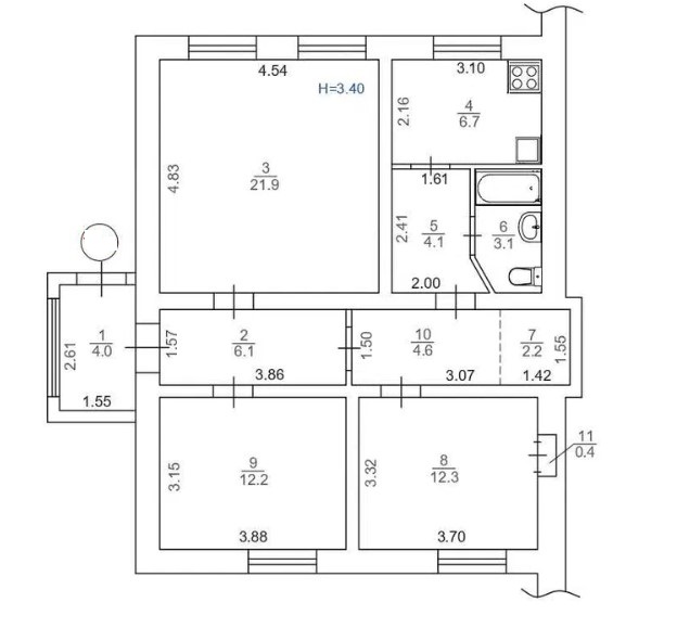
| ID | 41761 |
| Кімнат | 3 |
| Загальна площа | 77,6 м2 |
| Жила площа | 46,40 м2 |
| Площа кухні | 6,70 м2 |
| Поверх | 1 |
| Поверховість | 1 |
| Стан | Жилая |
Телефони:
+38 (098) 797-21-21+38 (095) 797-21-21
+38 (093) 797-21-21
3 -х ком. квартира на земле - пер. Матросова
Квартира находится в Приморском районе в пешей доступности к морю.
Одноэтажный домик , утопающий в зелени со своим двориком, подвалом и стоянкой для вашего авто. Комнаты раздельные с окнами, стены толстые- зимой тепло, летом- прохладно. Индивидуальное газовое отопление, центральная канализация, центральное водоснабжение.
Крыша отремонтирована. Квартира требует ремонта.
Прекрасная локация, в пешей доступности школьные и дошкольные учреждения, удобная транспортная развязка.
Приходите посмотреть - поторгуемся!
ID 41761
Електронна адреса:
realty.tvdom@gmail.comСхожі пропозиції
Дивитися усіНові квартири в Одесі та області
Для тисяч одеситів і тих, хто хоче ними стати, квартири в будинках, що будуються Одеси - не просто квадратні метри, а нові можливості для виконання найзаповітніших бажань. Усім, хто шукає свою першу квартиру або розширює жилплощадь в очікуванні додавання сім'ї, хто мріє оселитися на березі Чорного моря або хоче зробити вигідну інвестицію в нерухомість, ми Допоможемо відшукати і купити квартири від найкращих будівельних компаній Одеси.
Правильний вибір
Світле, просторе житло в красивому сучасному будинку, побудованому по самих новим технологіям - це реально досяжна мета для всіх наших клієнтів. Ми підшукуємо оптимальні варіанти, використовуючи перевірену часом Концепцію «Правильний вибір». Вона включає ретельний аналіз забудовників і їх пропозицій з метою вибрати найкращі. Наш клієнт отримує повне супровід угоди, підбір найбільш вигідної розстрочки для покупки новобудови.
Відкрийте для себе динамічний, яскравий, повний можливостей світ нерухомості Одеси та його околиць у супроводі найкращих експертів з новобудов!
Що отримують клієнти корпорації агентств нерухомості
- свіжу та перевірену інформацію про всі новобудови Одеси та його передмістя;
- екскурсії по готових будинках, що будуються;
- консультації провідних експертів у галузі нерухомості;
- допомога в оформленні документів на розстрочку та купівлю житла.
Як купити квартиру в Одесі швидко та вигідно
Виберіть найкращий варіант прямо зараз, скориставшись зручною системою пошуку на сайті. Тут є все про квартири в будинках, що будуються: ціни, планування, місцезнаходження, терміни здачі. Простий та зручний фільтр допоможе відібрати відповідні варіанти за хвилину. Або дзвоніть нам - менеджери запропонують варіанти за кращою ціною, розкажуть про плюси та мінуси кожного житлового комплексу. Далі все просто:
- ви бронюєте обрану квартиру;
- оглядаєте об'єкт у супроводі персонального менеджера;
- вибираєте зручну схему оплати (єдиний платіж, розстрочка);
- укладаєте договір безпосередньо із забудовником.
Приїжджайте до нашого відділу продажів, щоб особисто поговорити з ведучими експертами в будь-якій агенції, що входить до Корпорації та здобути незалежну оцінку всіх варіантів житла, які вас зацікавили. Тих, хто приїжджає вибирати квартиру в Одесі з інших міст та регіонів, ми зустрінемо в аеропорту або на вокзалі, допоможемо з розміщенням у готелі та детально розкажемо про всі варіанти, а головне - в яких новобудовах діють акції з максимальними знижками для іногородніх клієнтів. Ми допоможемо здійснити покупку квартири в будинку або готовому будинку найбільш вигідно!

