Корпорація
агентств
нерухомості
"Тв Дом-Лідер"
+38 (095) 797-21-21
+38 (093) 797-21-21
Современный и уютный дом в с. Сухой Лиман на одной из лучших улиц
Сухий Лиман, , ул. Надежды
180000 $
грн
- usd
- грн
| ID | 4389 |
| Кімнат | 4 |
| Площа ділянки | 7,00 сот. |
| Загальна площа | 250 м2 |
| Жила площа | 170,00 м2 |
| Площа кухні | 49,20 м2 |
| Поверховість | 3 |
| Стан | Евроремонт |
Телефони:
+38 (098) 797-21-21+38 (095) 797-21-21
+38 (093) 797-21-21
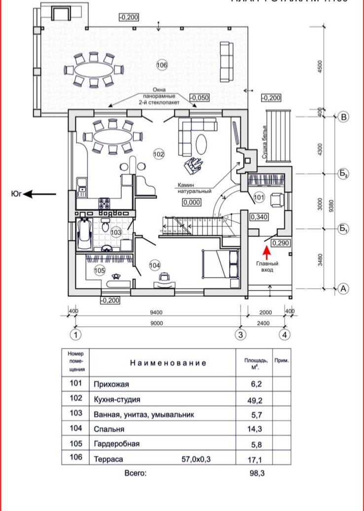
Продается просторный дом площадью 250 м², расположенный в одном из самых привлекательных районов села Сухой Лиман. Этот дом — идеальное сочетание комфорта и функциональности.
На первом этаже находятся прихожая, кухня-студия с выходом на крытую террасу, уютная спальня с гардеробной и санузел с ванной.
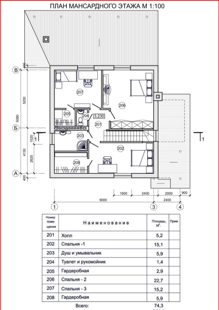
Второй этаж включает две спальни с гардеробными, гостевую спальню, а также санузел и отдельную душевую.
Дом полностью подключен ко всем необходимым коммуникациям: газ, водопровод, электричество, а также канализация (септик).
Участок площадью 7 соток ухожен, с множеством плодовых и декоративных растений. Двор вымощен тротуарной плиткой.
Удобное месторасположение: асфальтированная дорога, всего 5 минут до электрички и 15 минут на машине до города. В окрестностях находятся три продовольственных магазина и аптека.
ID 4389
Електронна адреса:
realty.tvdom@gmail.comСхожі пропозиції
Дивитися усіНові квартири в Одесі та області
Для тисяч одеситів і тих, хто хоче ними стати, квартири в будинках, що будуються Одеси - не просто квадратні метри, а нові можливості для виконання найзаповітніших бажань. Усім, хто шукає свою першу квартиру або розширює жилплощадь в очікуванні додавання сім'ї, хто мріє оселитися на березі Чорного моря або хоче зробити вигідну інвестицію в нерухомість, ми Допоможемо відшукати і купити квартири від найкращих будівельних компаній Одеси.
Правильний вибір
Світле, просторе житло в красивому сучасному будинку, побудованому по самих новим технологіям - це реально досяжна мета для всіх наших клієнтів. Ми підшукуємо оптимальні варіанти, використовуючи перевірену часом Концепцію «Правильний вибір». Вона включає ретельний аналіз забудовників і їх пропозицій з метою вибрати найкращі. Наш клієнт отримує повне супровід угоди, підбір найбільш вигідної розстрочки для покупки новобудови.
Відкрийте для себе динамічний, яскравий, повний можливостей світ нерухомості Одеси та його околиць у супроводі найкращих експертів з новобудов!
Що отримують клієнти корпорації агентств нерухомості
- свіжу та перевірену інформацію про всі новобудови Одеси та його передмістя;
- екскурсії по готових будинках, що будуються;
- консультації провідних експертів у галузі нерухомості;
- допомога в оформленні документів на розстрочку та купівлю житла.
Як купити квартиру в Одесі швидко та вигідно
Виберіть найкращий варіант прямо зараз, скориставшись зручною системою пошуку на сайті. Тут є все про квартири в будинках, що будуються: ціни, планування, місцезнаходження, терміни здачі. Простий та зручний фільтр допоможе відібрати відповідні варіанти за хвилину. Або дзвоніть нам - менеджери запропонують варіанти за кращою ціною, розкажуть про плюси та мінуси кожного житлового комплексу. Далі все просто:
- ви бронюєте обрану квартиру;
- оглядаєте об'єкт у супроводі персонального менеджера;
- вибираєте зручну схему оплати (єдиний платіж, розстрочка);
- укладаєте договір безпосередньо із забудовником.
Приїжджайте до нашого відділу продажів, щоб особисто поговорити з ведучими експертами в будь-якій агенції, що входить до Корпорації та здобути незалежну оцінку всіх варіантів житла, які вас зацікавили. Тих, хто приїжджає вибирати квартиру в Одесі з інших міст та регіонів, ми зустрінемо в аеропорту або на вокзалі, допоможемо з розміщенням у готелі та детально розкажемо про всі варіанти, а головне - в яких новобудовах діють акції з максимальними знижками для іногородніх клієнтів. Ми допоможемо здійснити покупку квартири в будинку або готовому будинку найбільш вигідно!

