Корпорація
агентств
нерухомості
"Тв Дом-Лідер"
+38 (095) 797-21-21
+38 (093) 797-21-21
Продам 2-х поверховий будинок в Лісках (ЖК "Тартус")
Ліски, , ул. Парковая
230000 $
грн
- usd
- грн
| ID | 8651 |
| Кімнат | 5 |
| Площа ділянки | 5,24 сот. |
| Загальна площа | 188,5 м2 |
| Жила площа | 120,00 м2 |
| Площа кухні | 30,00 м2 |
| Поверховість | 2 |
| Стан | От строителей |
Телефони:
+38 (098) 797-21-21+38 (095) 797-21-21
+38 (093) 797-21-21
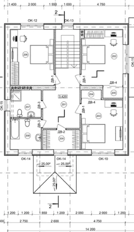
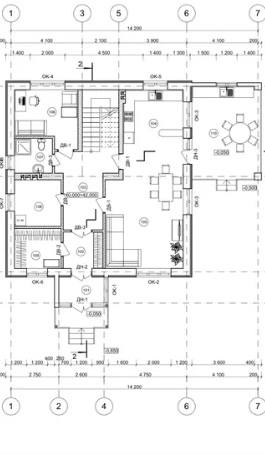
Пропонується до продажу 2-х поверховий будинок в Лісках (ЖК "Тартус").
Всього 10 хвилин пішки до моря!
Будинок збудований із 40-сантиметрового газобетону, що забезпечує міцність та енергоефективність. Встановлено вікна з високими теплозберігаючими властивостями.
1-й поверх: простора кухня-вітальня, гардеробна, санвузол із душем, кабінет, котельня, тераса.
2-й поверх: 3 спальні, гардеробна, 2 санвузли з душем.
Загальна площа будинку – 188,5 кв.м., площа земельної ділянки – 5,24 сотки.
Додатково: підвал для гаража та закладений фундамент, площа гаража – 65,2 кв.м.
Вода, газ, світло - заведені.
Будинок будувався для себе, використовувалися високоякісні матеріали.
ЖК "Тартус" (Ліски) - це приватний комплекс з територією, що охороняється.ID 8651
Електронна адреса:
realty.tvdom@gmail.comСхожі пропозиції
Дивитися усіНові квартири в Одесі та області
Для тисяч одеситів і тих, хто хоче ними стати, квартири в будинках, що будуються Одеси - не просто квадратні метри, а нові можливості для виконання найзаповітніших бажань. Усім, хто шукає свою першу квартиру або розширює жилплощадь в очікуванні додавання сім'ї, хто мріє оселитися на березі Чорного моря або хоче зробити вигідну інвестицію в нерухомість, ми Допоможемо відшукати і купити квартири від найкращих будівельних компаній Одеси.
Правильний вибір
Світле, просторе житло в красивому сучасному будинку, побудованому по самих новим технологіям - це реально досяжна мета для всіх наших клієнтів. Ми підшукуємо оптимальні варіанти, використовуючи перевірену часом Концепцію «Правильний вибір». Вона включає ретельний аналіз забудовників і їх пропозицій з метою вибрати найкращі. Наш клієнт отримує повне супровід угоди, підбір найбільш вигідної розстрочки для покупки новобудови.
Відкрийте для себе динамічний, яскравий, повний можливостей світ нерухомості Одеси та його околиць у супроводі найкращих експертів з новобудов!
Що отримують клієнти корпорації агентств нерухомості
- свіжу та перевірену інформацію про всі новобудови Одеси та його передмістя;
- екскурсії по готових будинках, що будуються;
- консультації провідних експертів у галузі нерухомості;
- допомога в оформленні документів на розстрочку та купівлю житла.
Як купити квартиру в Одесі швидко та вигідно
Виберіть найкращий варіант прямо зараз, скориставшись зручною системою пошуку на сайті. Тут є все про квартири в будинках, що будуються: ціни, планування, місцезнаходження, терміни здачі. Простий та зручний фільтр допоможе відібрати відповідні варіанти за хвилину. Або дзвоніть нам - менеджери запропонують варіанти за кращою ціною, розкажуть про плюси та мінуси кожного житлового комплексу. Далі все просто:
- ви бронюєте обрану квартиру;
- оглядаєте об'єкт у супроводі персонального менеджера;
- вибираєте зручну схему оплати (єдиний платіж, розстрочка);
- укладаєте договір безпосередньо із забудовником.
Приїжджайте до нашого відділу продажів, щоб особисто поговорити з ведучими експертами в будь-якій агенції, що входить до Корпорації та здобути незалежну оцінку всіх варіантів житла, які вас зацікавили. Тих, хто приїжджає вибирати квартиру в Одесі з інших міст та регіонів, ми зустрінемо в аеропорту або на вокзалі, допоможемо з розміщенням у готелі та детально розкажемо про всі варіанти, а головне - в яких новобудовах діють акції з максимальними знижками для іногородніх клієнтів. Ми допоможемо здійснити покупку квартири в будинку або готовому будинку найбільш вигідно!

