Корпорация
агентств
недвижимости
"Тв Дом-Лидер"
+38 (095) 797-21-21
+38 (093) 797-21-21
Продам часть дома 54м2 на Кордонной (Черемушки)
Одесса, Малиновский, ул. Кордонная
80000 $
грн
- usd
- грн
| ID | 3890 |
| Комнат | 3 |
| Площадь участка | 3,20 сот. |
| Общая площадь | 54 м2 |
| Жилая площадь | 36,00 м2 |
| Кухня площадь | 14,00 м2 |
| Этажность | 1 |
| Состояние | Евроремонт |
Телефоны:
+38 (098) 797-21-21+38 (095) 797-21-21
+38 (093) 797-21-21
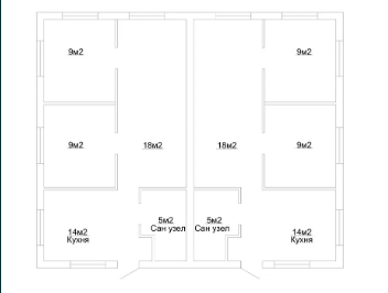
Дом поделён на 2 равные половины, каждая из которых автономна площадь по 54м2 каждая, со своим отдельным въездом, воротами и калиткой. У каждой половины 3,2 сотки (наружный и внутренний двор) каждая половина имеет: кухню 14м2, совмещённый санузел 5м2 с душевой кабиной, гостиная 18м2, 2 спальни по 9м2, тёплый водяной пол на кухне и в санузле. Каждая половина дома имеет свой 2-х контурный котёл (BAXI, газовый, Италия) ,отопление (стальные радиаторы). Установлены 3-х камерные металлопластиковые окна. Бронированные входные двери, фирмы Straj, замки Motura. Сделана идеальная стяжка под ламинат или паркет. Электропроводка выполнена качественно, автоматика и щитки фирмы Hager. Крыша металлочерепица, фасад дома отштукатурен, нанесён короед и покрашен. Каждая половина дома имеет площадку под авто, двор выложен тротуарной плиткой. Въезд на территорию не фасадный, имеет автоматические ворота, территория участка ограждена забором, много свободной земли под озеленение. Закрытая охраняемая территория Возможность продажи как всего дома, так и половины. Имеется большая полноценная выгребная яма. Тихое место расположение. Закрытая охраняемая территория на несколько семей.
Подойдёт для двух семей.
Можно рассмотреть под бизнес.
Код 3890
Электронный адрес:
realty.tvdom@gmail.comПохожие предложения
Смотреть всеНовые квартиры в Одессе и области
Для тысяч одесситов и тех, кто хочет ими стать, квартиры в строящихся домах Одессы — не просто квадратные метры, а новые возможности для исполнения самых заветных желаний. Всем, кто ищет свою первую квартиру или расширяет жилплощадь в ожидании прибавления семьи, кто мечтает поселиться на берегу Черного моря или хочет сделать выгодную инвестицию в недвижимость, мы поможем отыскать и купить квартиры от самых лучших строительных компаний Одессы.
Правильный выбор
Светлое, просторное жилье в красивом современном доме, построенном по самым новейшим технологиям — это реально достижимая цель для всех наших клиентов. Мы подыскиваем оптимальные варианты, используя проверенную временем концепцию «Правильный выбор». Она включает тщательный анализ застройщиков и их предложений с целью выбрать лучшие. Наш клиент получает полное сопровождение сделки, подбор наиболее выгодной рассрочки для покупки новостройки.
Откройте для себя динамичный, яркий, полный возможностей мир недвижимости Одессы и его окрестностей в сопровождении лучших экспертов по новостройкам!
Что получают клиенты корпорации агентств недвижимости
- свежую и проверенную информацию обо всех новостройках Одессы и его пригорода;
- экскурсии по готовым и строящимся домам;
- консультации ведущих экспертов в области недвижимости;
- помощь в оформлении документов на рассрочку и покупку жилья.
Как купить квартиру в Одессе быстро и выгодно
Выберите лучший вариант прямо сейчас, воспользовавшись удобной системой поиска на сайте. Здесь есть все про квартиры в строящихся домах: цены, планировки, местоположение, сроки сдачи. Простой и удобный фильтр поможет отобрать подходящие варианты за минуту. Либо звоните нам — менеджеры предложат варианты по лучшей цене, расскажут о плюсах и минусах каждого жилого комплекса. Дальше все просто:
- вы бронируете выбранную квартиру;
- осматриваете объект в сопровождении персонального менеджера;
- выбираете удобную схему оплаты (единый платеж, рассрочка);
- заключаете договор напрямую с застройщиком.
Приезжайте в наш отдел продаж, чтобы лично побеседовать с ведущими экспертами в любом агенстве, входящем в Корпорацию и получить независимую оценку всех вариантов жилья, которые вас заинтересовали. Тех, кто приезжает выбирать квартиру в Одессе из других городов и регионов, мы встретим в аэропорту или на вокзале, поможем с размещением в гостинице и детально расскажем об всех вариантах, а главное — в каких новостройках действуют акции с максимальными скидками для иногородних клиентов. Мы поможем осуществить покупку квартиры в строящемся или готовом доме наиболее выгодно!

