Корпорация
агентств
недвижимости
"Тв Дом-Лидер"
+38 (095) 797-21-21
+38 (093) 797-21-21
Однокомнатная, еОселя, в ЖК Бульвар Акаций
Одесса, Малиновский, ул. Бугаевская
36477 $
1057833 грн
- usd
- грн
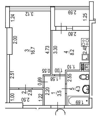
| ID | 34553 |
| Комнат | 1 |
| Общая площадь | 39 м2 |
| Жилая площадь | 19,25 м2 |
| Кухня площадь | 8,40 м2 |
| Этаж | 3 |
| Этажность | 17 |
| Состояние | От строителей |
Телефоны:
+38 (098) 797-21-21+38 (095) 797-21-21
+38 (093) 797-21-21
В продаже 1 комнатная квартира 39 кв.м. в ЖК Бульвар Акаций!
Дом жилой, сдан в 2021году.
Есть все правоустанавливающие документы.
Квартира подходит под еОселя и другие государственные программы.
Состояние квартиры от строителей. На полу стяжка, стены не шпаклеваны. Установлены и подключены радиаторы отопления. В квартиру заведена электрика, сантехника, пожарная сигнализация, интернет. Лоджия застеклена. Установлено крепление для наружного блока кондиционера.
Есть генератор на весь дом.
Закрытая придомовая территория, паркинг (можно использовать как бомбоубежище).
Рядом, супермаркеты «Идеал», " Таврия-В", АТБ, поликлиника, пять бизнес-центров, офисы «Новой почты» и Банков, автовокзал, McDonalds.
Всего в 15-20 минутах находятся 2 школы и высшие учебные заведения, Дюковский парк и парк Савицкого.
ID 34553
Электронный адрес:
realty.tvdom@gmail.comПохожие предложения
Смотреть всеНовые квартиры в Одессе и области
Для тысяч одесситов и тех, кто хочет ими стать, квартиры в строящихся домах Одессы — не просто квадратные метры, а новые возможности для исполнения самых заветных желаний. Всем, кто ищет свою первую квартиру или расширяет жилплощадь в ожидании прибавления семьи, кто мечтает поселиться на берегу Черного моря или хочет сделать выгодную инвестицию в недвижимость, мы поможем отыскать и купить квартиры от самых лучших строительных компаний Одессы.
Правильный выбор
Светлое, просторное жилье в красивом современном доме, построенном по самым новейшим технологиям — это реально достижимая цель для всех наших клиентов. Мы подыскиваем оптимальные варианты, используя проверенную временем концепцию «Правильный выбор». Она включает тщательный анализ застройщиков и их предложений с целью выбрать лучшие. Наш клиент получает полное сопровождение сделки, подбор наиболее выгодной рассрочки для покупки новостройки.
Откройте для себя динамичный, яркий, полный возможностей мир недвижимости Одессы и его окрестностей в сопровождении лучших экспертов по новостройкам!
Что получают клиенты корпорации агентств недвижимости
- свежую и проверенную информацию обо всех новостройках Одессы и его пригорода;
- экскурсии по готовым и строящимся домам;
- консультации ведущих экспертов в области недвижимости;
- помощь в оформлении документов на рассрочку и покупку жилья.
Как купить квартиру в Одессе быстро и выгодно
Выберите лучший вариант прямо сейчас, воспользовавшись удобной системой поиска на сайте. Здесь есть все про квартиры в строящихся домах: цены, планировки, местоположение, сроки сдачи. Простой и удобный фильтр поможет отобрать подходящие варианты за минуту. Либо звоните нам — менеджеры предложат варианты по лучшей цене, расскажут о плюсах и минусах каждого жилого комплекса. Дальше все просто:
- вы бронируете выбранную квартиру;
- осматриваете объект в сопровождении персонального менеджера;
- выбираете удобную схему оплаты (единый платеж, рассрочка);
- заключаете договор напрямую с застройщиком.
Приезжайте в наш отдел продаж, чтобы лично побеседовать с ведущими экспертами в любом агенстве, входящем в Корпорацию и получить независимую оценку всех вариантов жилья, которые вас заинтересовали. Тех, кто приезжает выбирать квартиру в Одессе из других городов и регионов, мы встретим в аэропорту или на вокзале, поможем с размещением в гостинице и детально расскажем об всех вариантах, а главное — в каких новостройках действуют акции с максимальными скидками для иногородних клиентов. Мы поможем осуществить покупку квартиры в строящемся или готовом доме наиболее выгодно!

