Корпорація
агентств
нерухомості
"Тв Дом-Лідер"
+38 (095) 797-21-21
+38 (093) 797-21-21
Продам студию в ЖК «Корфу» у моря
Одесса, Киевский, переулок Кордонный
55000 $
1595000 грн
- usd
- грн
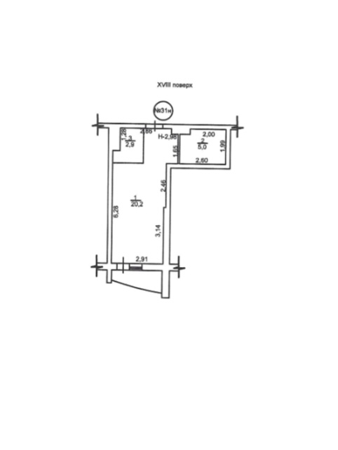
| ID | 42123 |
| Кімнат | 1 |
| Загальна площа | 29,5 м2 |
| Жила площа | 20,00 м2 |
| Площа кухні | 5,00 м2 |
| Поверх | 18 |
| Поверховість | 19 |
| Стан | Под отделочные работы |
Телефони:
+38 (098) 797-21-21+38 (095) 797-21-21
+38 (093) 797-21-21
Продается квартира-студия в жилом комплексе «Корфу».
Дом у самого моря, до пляжа всего 3 минуты пешком.
Квартира с шикарным видом на город и закат.
Ремонт частично выполнен — есть возможность завершить по своему вкусу.
Рядом — магазины, кафе, остановки транспорта.
Отличный вариант для жизни, отдыха у моря или аренды.
Звоните, покажем в удобное время!
ID 42123
Електронна адреса:
realty.tvdom@gmail.comСхожі пропозиції
Дивитися усіНові квартири в Одесі та області
Для тисяч одеситів і тих, хто хоче ними стати, квартири в будинках, що будуються Одеси - не просто квадратні метри, а нові можливості для виконання найзаповітніших бажань. Усім, хто шукає свою першу квартиру або розширює жилплощадь в очікуванні додавання сім'ї, хто мріє оселитися на березі Чорного моря або хоче зробити вигідну інвестицію в нерухомість, ми Допоможемо відшукати і купити квартири від найкращих будівельних компаній Одеси.
Правильний вибір
Світле, просторе житло в красивому сучасному будинку, побудованому по самих новим технологіям - це реально досяжна мета для всіх наших клієнтів. Ми підшукуємо оптимальні варіанти, використовуючи перевірену часом Концепцію «Правильний вибір». Вона включає ретельний аналіз забудовників і їх пропозицій з метою вибрати найкращі. Наш клієнт отримує повне супровід угоди, підбір найбільш вигідної розстрочки для покупки новобудови.
Відкрийте для себе динамічний, яскравий, повний можливостей світ нерухомості Одеси та його околиць у супроводі найкращих експертів з новобудов!
Що отримують клієнти корпорації агентств нерухомості
- свіжу та перевірену інформацію про всі новобудови Одеси та його передмістя;
- екскурсії по готових будинках, що будуються;
- консультації провідних експертів у галузі нерухомості;
- допомога в оформленні документів на розстрочку та купівлю житла.
Як купити квартиру в Одесі швидко та вигідно
Виберіть найкращий варіант прямо зараз, скориставшись зручною системою пошуку на сайті. Тут є все про квартири в будинках, що будуються: ціни, планування, місцезнаходження, терміни здачі. Простий та зручний фільтр допоможе відібрати відповідні варіанти за хвилину. Або дзвоніть нам - менеджери запропонують варіанти за кращою ціною, розкажуть про плюси та мінуси кожного житлового комплексу. Далі все просто:
- ви бронюєте обрану квартиру;
- оглядаєте об'єкт у супроводі персонального менеджера;
- вибираєте зручну схему оплати (єдиний платіж, розстрочка);
- укладаєте договір безпосередньо із забудовником.
Приїжджайте до нашого відділу продажів, щоб особисто поговорити з ведучими експертами в будь-якій агенції, що входить до Корпорації та здобути незалежну оцінку всіх варіантів житла, які вас зацікавили. Тих, хто приїжджає вибирати квартиру в Одесі з інших міст та регіонів, ми зустрінемо в аеропорту або на вокзалі, допоможемо з розміщенням у готелі та детально розкажемо про всі варіанти, а головне - в яких новобудовах діють акції з максимальними знижками для іногородніх клієнтів. Ми допоможемо здійснити покупку квартири в будинку або готовому будинку найбільш вигідно!

